x
S E T A A L U M I N Y U M

1994’ten bu yana inşaat ve elektrik sektöründe faaliyet gösteren Ateş İnşaat, 2025 yılında alüminyum profil üretimine “SETAALUMİNYUM” markasıyla başlamıştır. Kilis’te kurulmuş olan 12.000m2 kapalı, 26.000m2 açık fabrika alanında uzman ve deneyimli ekibi ile gelişmiş son teknoloji makinelerle uluslararası standartlarda üretim yapmaktadır.

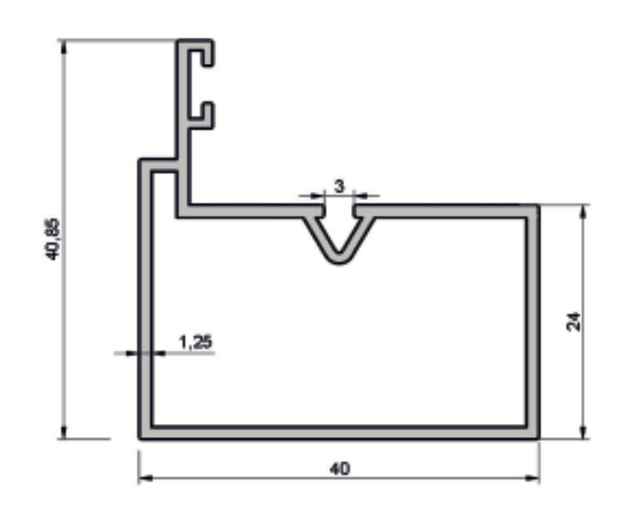
Seta 4015

Ağırlık : 531 ( gr/m)

SETA 4015, cam balkon sistemlerinde 531 gr/m ağırlığı ile tamamlayıcı ve bağlayıcı rol üstlenen bir profildir. Genelde açılır kanadın (kapı görevi gören camın) diğer camlarla birleştiği noktada veya köşe dönüşlerinde "Adaptör" olarak kullanılır.

Seta Alüminyum kalitesiyle üretilen bu profil, kanatlar arasındaki boşluğu alarak sistemin kilitlenmesini ve yalıtımın sağlanmasını kolaylaştırır. Estetik formuyla cam paneller arasında bütünlük oluşturur.

 

Öne Çıkan Özellikler

  • Kilitlenme: Kanatların birbirine kenetlenmesini sağlayan yapıya sahiptir.

  • Sızdırmazlık: Çift taraflı fitil yuvaları ile rüzgar ve yağmur girişini engeller.

  • İdeal Ağırlık: 531 gr/m ile kanada aşırı yük bindirmeden gerekli mukavemeti sağlar.

Profil Kodu = 4015

Kategori = Cam Balkon Profilleri

Teorik Ağırlık = 0.531 kg/m

Kullanım Yeri = Adaptör / Birleşim Profili

 

Neden Bu Ürünü SETA Alüminyum Kalitesiyle Almalısınız?

  • Hassas Uyum: Hareketli parçaların (kanatların) sürtünmeden çalışması için milimetrik hassasiyetle üretiyoruz.

  • Renk Seçenekleri: Balkon dekorasyonunuza uygun Gümüş, Bronz, Antrasit gibi renk seçenekleri sunuyoruz.

  • Uzun Ömür: Korozyona karşı dirençli yüzey işlemi ile yıllarca bakım gerektirmez.

Seta Alüminyum 4000 serisi cam balkon sistemiyle tam uyumludur.

Profilin düz yüzeylerine yapıştırma usulüyle mıknatıslı fitil uygulanabilir.

Standart olarak 6 metre boyunda üretilmektedir.

Bize Yazın

Sorularınızı Hemen Sorun

Projeleriniz, ürün talepleriniz veya iş birlikleri hakkında detaylı bilgi almak için bizimle iletişime geçebilirsiniz. Uzman ekibimiz size en kısa sürede dönüş yapacaktır.

Seta Aluminyum TSE Belgesi

Tse Onaylı

Seta Alüminyum, üretim süreçlerinde kalite ve güveni ön planda tutarak, ürünlerini TSE standartlarına uygun şekilde üretmekte ve belgelendirmektedir.

Seta Aluminyum Katalog

Kataloglarımız

Kataloglarımızda mimariden otomotive, enerjiden savunma sanayine kadar birçok sektöre özel alüminyum profil çözümlerimizi bulabilirsiniz.

Diğer Ürünleri Keşfet

Detaylarda Güç Saklı! Diğer Ürünlerimize Göz Atın.

Benzer Ürünler bölümümüzde, ihtiyaçlarınıza uygun farklı profil seçeneklerini keşfedin. Fonksiyonel, estetik ve dayanıklı çözümlerle projelerinize en uygun alternatifi sunuyoruz.